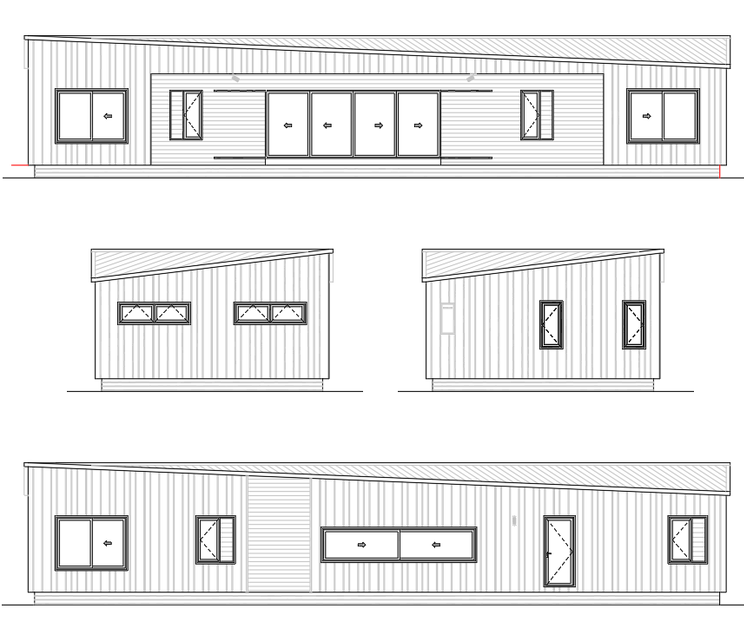
Box 154
Elevate 154 Exterior and Roof Styles
THE DRAWINGS AND DESIGNS FEATURED ON THIS WEBSITE ARE THE COPYRIGHT OF ELEVATE LTD. ANY UNAUTHORISED REPRODUCTION OR USE WILL END IN PROSECUTION.
THE DRAWINGS AND DESIGNS FEATURED ON THIS WEBSITE ARE THE COPYRIGHT OF ELEVATE LTD. ANY UNAUTHORISED REPRODUCTION OR USE WILL END IN PROSECUTION.