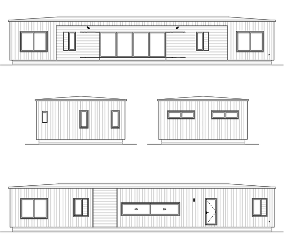
Box 150
Elevate 150 Exterior and Roof Styles
THE DRAWINGS AND DESIGNS FEATURED ON THIS WEBSITE ARE THE COPYRIGHT OF ELEVATE LTD. ANY UNAUTHORISED REPRODUCTION OR USE WILL END IN PROSECUTION.
THE DRAWINGS AND DESIGNS FEATURED ON THIS WEBSITE ARE THE COPYRIGHT OF ELEVATE LTD. ANY UNAUTHORISED REPRODUCTION OR USE WILL END IN PROSECUTION.